Beschikbaar

Suiteweg 3

5245 bw, Rosmalen
  • 137
  • 228
  • 5 slaapkamers
  • A
€ 659.000,- k.k.
Martijn Vosmar Makelaar
Omschrijving

Jouw Waare (t)Huis aan Suiteweg 3 in Rosmalen! Droom jij van wonen in jaren ’30 stijl met vrij uitzicht over de Centrale Waterplas van De Groote Wielen? Deze uitgebouwde tussenwoning biedt niet alleen een unieke ligging aan het water, maar ook verrassend veel ruimte met maar liefst vijf slaapkamers, een extra werk- of studeerkamer en een volwaardige derde verdieping met vaste trap. De strak afgewerkte begane grond met eikenhouten vloer…

Jouw Waare (t)Huis aan Suiteweg 3 in Rosmalen!
Droom jij van wonen in jaren ’30 stijl met vrij uitzicht over de Centrale Waterplas van De Groote Wielen? Deze uitgebouwde tussenwoning biedt niet alleen een unieke ligging aan het water, maar ook verrassend veel ruimte met maar liefst vijf slaapkamers, een extra werk- of studeerkamer en een volwaardige derde verdieping met vaste trap. De strak afgewerkte begane grond met eikenhouten vloer en strakke wandafwerking, badkamer met inloopdouche en met ligbad én de zonnige tuin van ruim 22 meter diep op het zuiden maken dit een compleet en comfortabel woonhuis op een van de mooiste plekken van De Groote Wielen.

LIGGING:
Suiteweg 3 bevindt zich in het populaire deelplan De Hoven van De Groote Wielen, een moderne woonwijk aan de noordoostzijde van Rosmalen. De wijk kenmerkt zich door haar ruime opzet, het vele groen en de rustige, kindvriendelijke sfeer. Aan de voorzijde van de woning ligt een brede wadi met twee speeltuinen: een heerlijke speelplek voor kinderen én een garantie voor vrij uitzicht. Kindcentrum De Hoven ligt op loopafstand, net als diverse wandel- en fietspaden door de wijk.

Uniek aan deze locatie is de directe nabijheid van de Groote Wielenplas. Aan het einde van deze rustige, brede woonstraat sta je ineens in een compleet andere wereld. Hier kun je naar hartenlust suppen, varen, zwemmen of genieten aan het water. Ook picknicken, vissen of gewoon ontspannen in het gras behoren tot de mogelijkheden. De recreatieplas geeft de wijk een ontspannen, bijna vakantieachtige sfeer.

Loop je nog iets verder, dan bereik je via een brug het nieuwe centrum van De Groote Wielen. Dit moderne wijkcentrum biedt onder andere twee supermarkten, een bakker, drogist, gemakswinkel, horecagelegenheden en een gezondheidscentrum. Ook het Rodenborch College – een moderne middelbare school voor vmbo, havo en vwo – is nabij gelegen. De centrale ligging maakt dat je met de auto binnen enkele minuten op de A2 of A59 zit, richting ’s-Hertogenbosch, Eindhoven of Nijmegen. Kortom: alles wat je nodig hebt, ligt binnen handbereik.

Goed om te weten:
– De woning is aan de achterzijde royaal uitgebouwd, waardoor een heerlijke leefruimte is ontstaan. De dubbele deuren zorgen voor een prachtige, directe verbinding met de achtertuin, binnen en buiten lopen hier moeiteloos in elkaar over;
– De gehele woning is voorzien van comfortabele vloerverwarming met in iedere kamer een eigen thermostaat. Zo geniet je overal van een aangename temperatuur én optimale controle over je wooncomfort;
– Alle wanden zijn strak en modern afgewerkt, wat zorgt voor een frisse, luxe uitstraling waar je zó je meubels kunt neerzetten;
– Op de begane grond ligt een stijlvolle eiken (lamel)parketvloer die warmte en karakter toevoegt aan het geheel;
– De halfopen keuken aan de voorzijde is uitgevoerd in hoogglans wit met een chic zwart natuurstenen werkblad. Uiteraard compleet uitgerust met een 4-pits gaskookplaat, RVS afzuigkap, vaatwasser, koelkast, separate vriezer, oven en magnetron – een fijne plek voor kookliefhebbers;
– De royale woonkamer biedt volop indelingsmogelijkheden en staat via openslaande deuren in directe verbinding met de zonnige achtertuin. Een perfecte setting voor lange zomeravonden en gezellige momenten met familie en vrienden;
– De achtertuin is maar liefst circa 22 meter diep, ligt gunstig op het zuiden en beschikt over een terras, gazon, sfeervolle grondspots en ingebouwde sproeiers. Hier geniet je de hele dag van zon, ruimte en privacy;
– Vanuit de woning heb je vrij uitzicht over de Centrale Waterplas. Dit unieke uitzicht geeft dagelijks een bijzonder gevoel van rust, ruimte en vrijheid;
– Op de eerste verdieping vind je drie comfortabele slaapkamers en een complete badkamer met ligbad, inloopdouche, tweede toilet en een brede wastafel, ideaal voor een gezin;
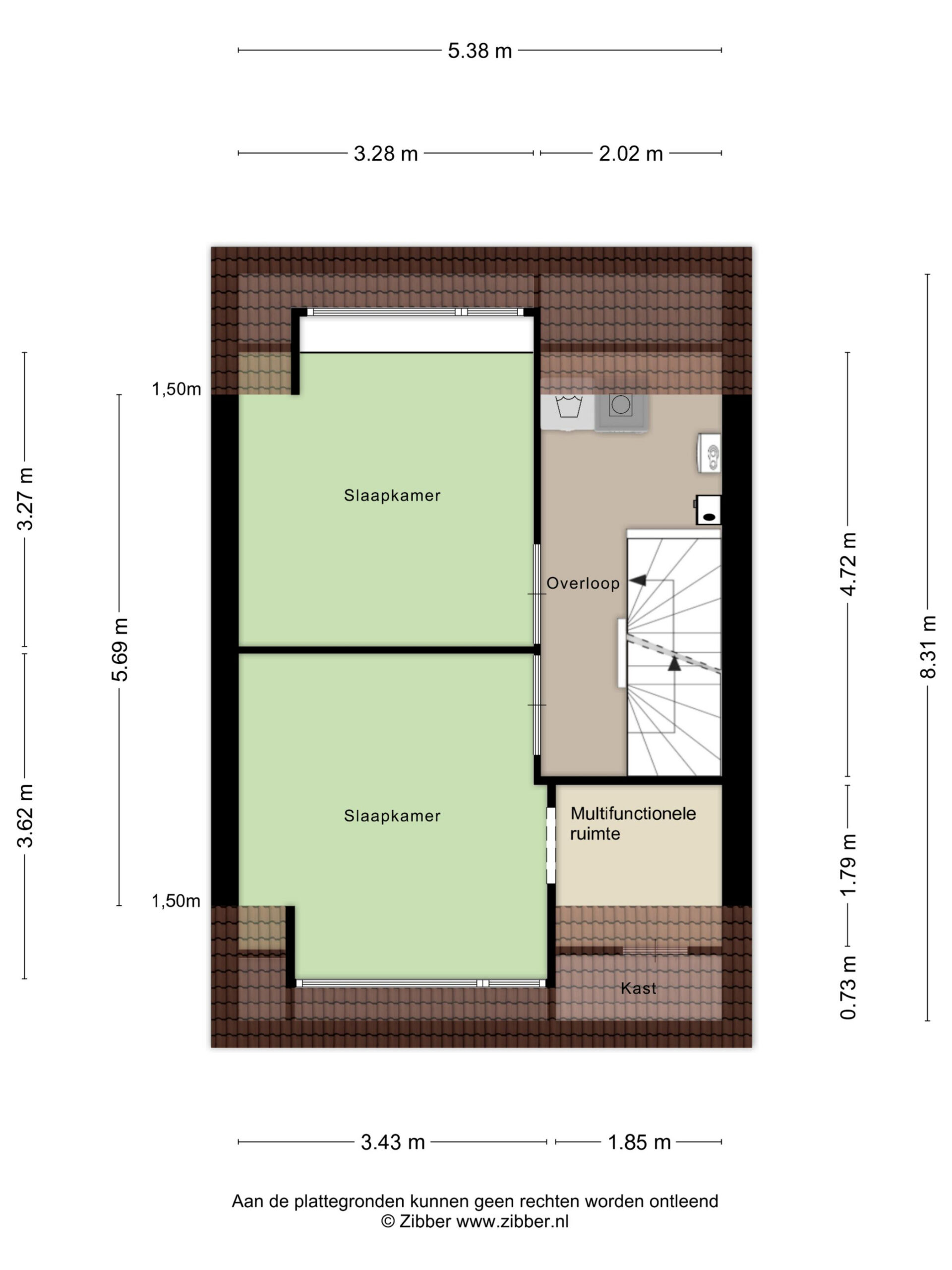
– De tweede verdieping verrast met twee grote slaapkamers, voorzien van een dakkapel over vrijwel de gehele breedte. Daarnaast is er een werk-/studeerkamer en volop ruimte voor de wasmachine- en drogeraansluiting;
– Extra bergruimte nodig? Er is ook een derde verdieping! De praktische bergzolder, bereikbaar via een vaste trap, biedt volop opbergmogelijkheden;
– De woning is volledig geïsoleerd en energiezuinig gebouwd, wat zorgt voor lage energielasten en toekomstbestendig wooncomfort;
– Parkeren kan eenvoudig aan de voorzijde van de woning;
– De oplevering vindt plaats in overleg;

Benieuwd of dit jouw Waare (t)Huis wordt? We laten het je graag ervaren tijdens een bezichtiging!

Toon meer Lees minder
Digitale rondleiding
Kenmerken
  • Status Beschikbaar
  • Vraagprijs € 659.000,- k.k.
  • Aanvaarding In overleg
  • Soort woonhuis Tussenwoning
  • Soort bouw Bestaande bouw
  • Bouwjaar 2011
  • Soort dak Zadeldak
  • Onderhoud binnen Goed tot uitstekend
  • Onderhoud buiten Goed
  • Gebruiksoppervlakte wonen ca. 137 m2
  • Oppervlakte gebouwgebonden ca. 1 m2
  • Externe bergruimte ca. 7 m2
  • Overige inpandige ruimte ca. 6 m2
  • Inhoud ca. 508 m3
  • Perceeloppervlakte ca. 228 m2
  • Aantal badkamers 1 badkamer
  • Badkamervoorzieningen Ligbad, toilet, wastafel, inloopdouche, vloerverwarming
  • Aantal woonlagen 4 woonlagen
  • Voorzieningen Mechanische ventilatie, rolluiken, tv kabel, buitenzonwering, glasvezel kabel, balansventilatie
  • Energielabel A
  • Isolatie Dakisolatie, muurisolatie, vloerisolatie, volledig geisoleerd, hr glas
  • Verwarming Cv ketel, vloerverwarming geheel
  • Warm water Cv ketel
  • C.v.-ketel type Gas
  • C.v.-ketel bouwjaar 2011
  • Eigendom Eigendom
  • Ligging Aan water, aan rustige weg, in woonwijk, vrij uitzicht
  • Oppervlakte hoofdtuin ca. 132 m2
  • Ligging hoofdtuin Zuid
  • Achterom Ja
  • Kwaliteit tuin Verzorgd
  • Schuur / berging Vrijstaand hout
  • Aantal schuren / bergingen Ja
  • Parkeerfaciliteiten Openbaar parkeren
  • Garage Geen garage
Het Waare Huis

Met aandacht maken we alles mooier

Kies voor onze unieke aanpak!

Fles bubbels bij verkocht huis
Dit veld is bedoeld voor validatiedoeleinden en moet niet worden gewijzigd.
Cookie melding

Het Waare Huis maakt gebruik van eigen cookies en die van derden om zo een betere service te kunnen verlenen en statistische gegevens van bezoekers bij te houden.

Accepteren