Beschikbaar

Mariniersstraat 4

5224 gw, 's-hertogenbosch
  • 106
  • 114
  • 4 slaapkamers
  • A++
€ 479.000,- k.k.
Jasper van den Broek Makelaar
Omschrijving

Jouw Waare (t)Huis aan Mariniersstraat 4 in ’s-Hertogenbosch! Ben je op zoek naar een instapklare woning met comfort, ruimte en een fijne tuin? Dan is deze moderne tussenwoning uit 2013 precies wat je zoekt! De woning beschikt over vier slaapkamers, een moderne open keuken, een lichte woonkamer en een zonnige achtertuin op het zuidwesten met overkapping. Met energielabel A++, 12 zonnepanelen, vloerverwarming op de begane grond en airconditioning is dit…

Jouw Waare (t)Huis aan Mariniersstraat 4 in ’s-Hertogenbosch!
Ben je op zoek naar een instapklare woning met comfort, ruimte en een fijne tuin? Dan is deze moderne tussenwoning uit 2013 precies wat je zoekt! De woning beschikt over vier slaapkamers, een moderne open keuken, een lichte woonkamer en een zonnige achtertuin op het zuidwesten met overkapping. Met energielabel A++, 12 zonnepanelen, vloerverwarming op de begane grond en airconditioning is dit een toekomstbestendige woning met een hoog wooncomfort. Ideaal voor starters en gezinnen!

Locatie
De woning is gelegen in een rustige en kindvriendelijke woonwijk De Kruiskamp in ’s-Hertogenbosch. In de directe omgeving vind je diverse voorzieningen zoals supermarkten, scholen, sportfaciliteiten en speelgelegenheden. Ook het openbaar vervoer is goed bereikbaar en via de nabijgelegen uitvalswegen ben je snel onderweg richting het centrum van ’s-Hertogenbosch en andere steden. De wijk kenmerkt zich door een prettige woonomgeving met veel groen en een fijne sfeer, ideaal voor gezinnen en starters die comfortabel willen wonen.

Goed om te weten
– de woning is gebouwd in 2013 en volledig geïsoleerd, wat zorgt voor een comfortabel en energiezuinig woonklimaat;
– de woning beschikt over energielabel A++ en is voorzien van 12 zonnepanelen en HR++ beglazing, wat resulteert in lage energielasten;
– de begane grond is voorzien van een moderne pvc vloer met vloerverwarming en een stucwerk plafondafwerking in combinatie met behangen wanden;
– de ruime woonkamer beschikt over veel lichtinval door de grote raampartijen en een directe verbinding met de tuin via de achterzijde;
– de open keuken is uitgevoerd in een lichte kleurstelling en voorzien van diverse inbouwapparatuur zoals een gaskookplaat, afzuigkap, oven, vaatwasser en koelkast;
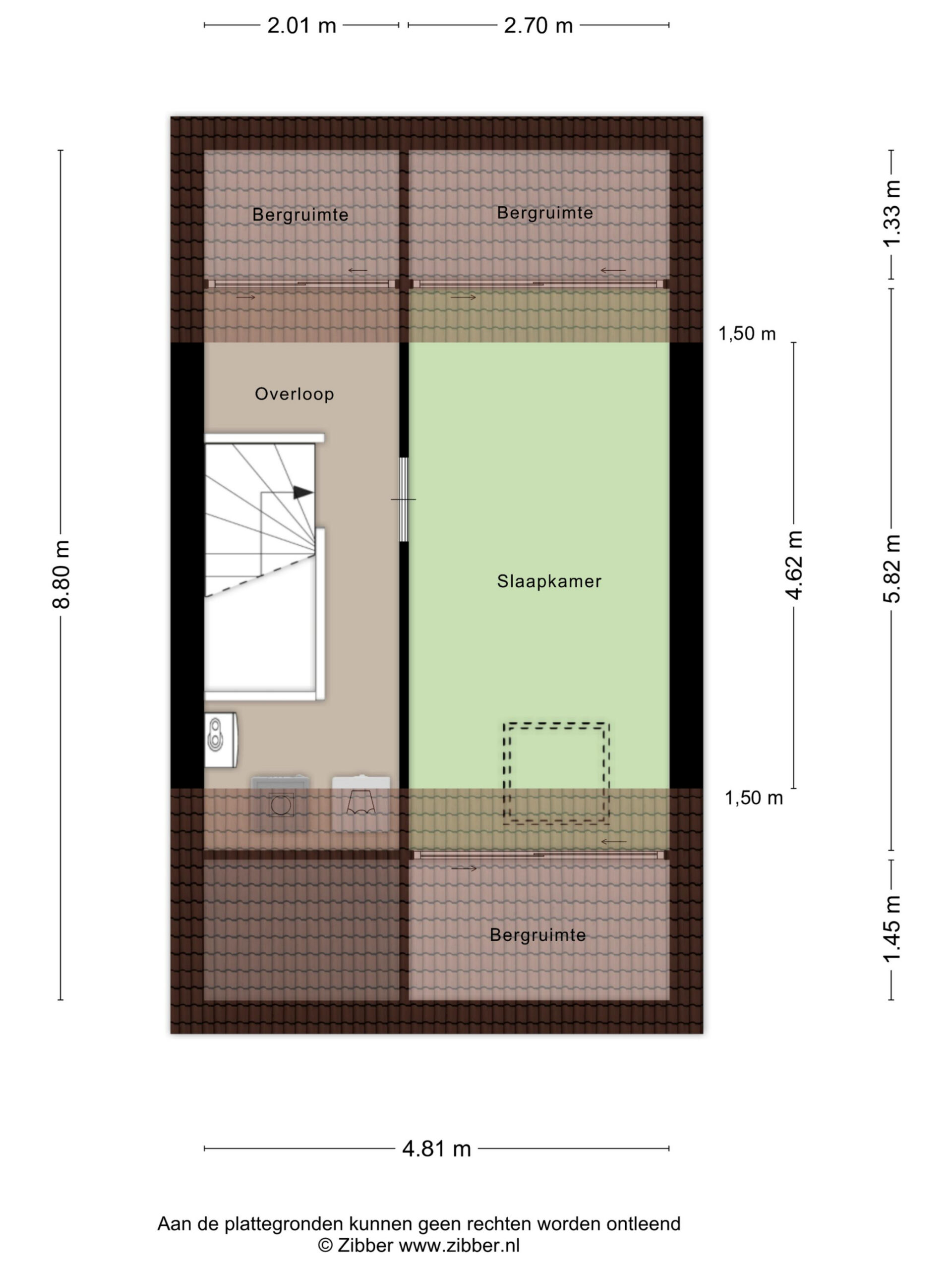
– de woning beschikt over vier slaapkamers, waarvan drie op de eerste verdieping en een vierde slaapkamer op de tweede verdieping;
– de eerste verdieping beschikt daarnaast over een ruime badkamer met hoekbad met douchemogelijkheid, toilet en een wastafel;
– op de overloop van de tweede verdieping bevinden zich de wasmachineaansluiting en de opstelling van de cv-ketel (2013);
– de woning is voorzien van airconditioning in de woonkamer en op de tweede verdieping, wat zorgt voor extra comfort tijdens warme dagen;
– zowel aan de voor- als achterzijde zijn rolluiken aanwezig, wat bijdraagt aan privacy en comfort;
– de achtertuin is gelegen op het zuidwesten, waardoor je hier volop van de zon kunt genieten;
– de tuin is verzorgd aangelegd en beschikt over een overkapping en een berging, ideaal voor extra opslag en gezellige zitmomenten;
– oplevering in overleg.

Benieuwd of dit jouw Waare (T)huis wordt?
We laten het je graag zien tijdens een bezichtiging!

Toon meer Lees minder
Digitale rondleiding
Kenmerken
  • Status Beschikbaar
  • Vraagprijs € 479.000,- k.k.
  • Aanvaarding In overleg
  • Soort woonhuis Tussenwoning
  • Soort bouw Bestaande bouw
  • Bouwjaar 2013
  • Soort dak Zadeldak
  • Onderhoud binnen Goed
  • Onderhoud buiten Goed
  • Gebruiksoppervlakte wonen ca. 106 m2
  • Externe bergruimte ca. 8 m2
  • Inhoud ca. 375 m3
  • Perceeloppervlakte ca. 114 m2
  • Aantal badkamers 1 badkamer
  • Badkamervoorzieningen Ligbad, toilet, wastafel
  • Aantal woonlagen 3 woonlagen
  • Voorzieningen Mechanische ventilatie, rolluiken, tv kabel, airconditioning, schuifpui, dakraam, glasvezel kabel, zonnepanelen
  • Energielabel A++
  • Isolatie Dakisolatie, muurisolatie, vloerisolatie, volledig geisoleerd
  • Verwarming Cv ketel, vloerverwarming gedeeltelijk
  • Warm water Cv ketel
  • C.v.-ketel type Gas
  • C.v.-ketel bouwjaar 2013
  • Eigendom Eigendom
  • Ligging Aan rustige weg, in woonwijk
  • Oppervlakte hoofdtuin ca. 40 m2
  • Ligging hoofdtuin Zuidwest
  • Achterom Ja
  • Kwaliteit tuin Verzorgd
  • Schuur / berging Vrijstaand hout
  • Aantal schuren / bergingen Ja
  • Parkeerfaciliteiten Openbaar parkeren
  • Garage Geen garage
Het Waare Huis

Met aandacht maken we alles mooier

Kies voor onze unieke aanpak!

Fles bubbels bij verkocht huis
Dit veld is bedoeld voor validatiedoeleinden en moet niet worden gewijzigd.
Cookie melding

Het Waare Huis maakt gebruik van eigen cookies en die van derden om zo een betere service te kunnen verlenen en statistische gegevens van bezoekers bij te houden.

Accepteren