Beschikbaar

Gerard van Dinterstraat 39

5246 ej, Rosmalen
  • 141
  • 164
  • 5 slaapkamers
  • A
€ 495.000,- k.k.
Mitchell Zenhorst NVM Makelaar
Omschrijving

Jouw Waare (t)huis aan Gerard van Dinterstraat 39 in Rosmalen! Op zoek naar een ruime en comfortabele eengezinswoning? Dan zou dit zomaar eens jouw nieuwe (t)huis kunnen zijn. Deze verrassend ruime tussenwoning is heerlijk licht en biedt maar liefst 141 m² woonoppervlakte. Met een stijlvolle afwerking, 4 à 5 slaapkamers en een zonnige achtertuin op het zuidoosten is het hier prettig wonen. Voeg daar de rustige ligging en het energiezuinige…

Jouw Waare (t)huis aan Gerard van Dinterstraat 39 in Rosmalen!
Op zoek naar een ruime en comfortabele eengezinswoning? Dan zou dit zomaar eens jouw nieuwe (t)huis kunnen zijn. Deze verrassend ruime tussenwoning is heerlijk licht en biedt maar liefst 141 m² woonoppervlakte. Met een stijlvolle afwerking, 4 à 5 slaapkamers en een zonnige achtertuin op het zuidoosten is het hier prettig wonen. Voeg daar de rustige ligging en het energiezuinige karakter aan toe, en je hebt een plek waar comfort en woongenot samenkomen.

Locatie:
De woning is gelegen in de geliefde en karakteristieke wijk Hintham, een rustige en groene woonwijk aan de rand van Rosmalen en ’s-Hertogenbosch. Hintham staat bekend om zijn dorpse karakter, brede straten en prettige woonomgeving. In de directe nabijheid bevinden zich diverse voorzieningen zoals basisscholen, kinderopvang, sportaccommodaties en winkels voor de dagelijkse boodschappen. Ook het gezellige centrum van Rosmalen en de binnenstad van ’s-Hertogenbosch zijn snel en eenvoudig bereikbaar, zowel met de fiets als met de auto. Daarnaast zijn de uitvalswegen richting de A2 en A59 goed bereikbaar.

Goed om te weten:
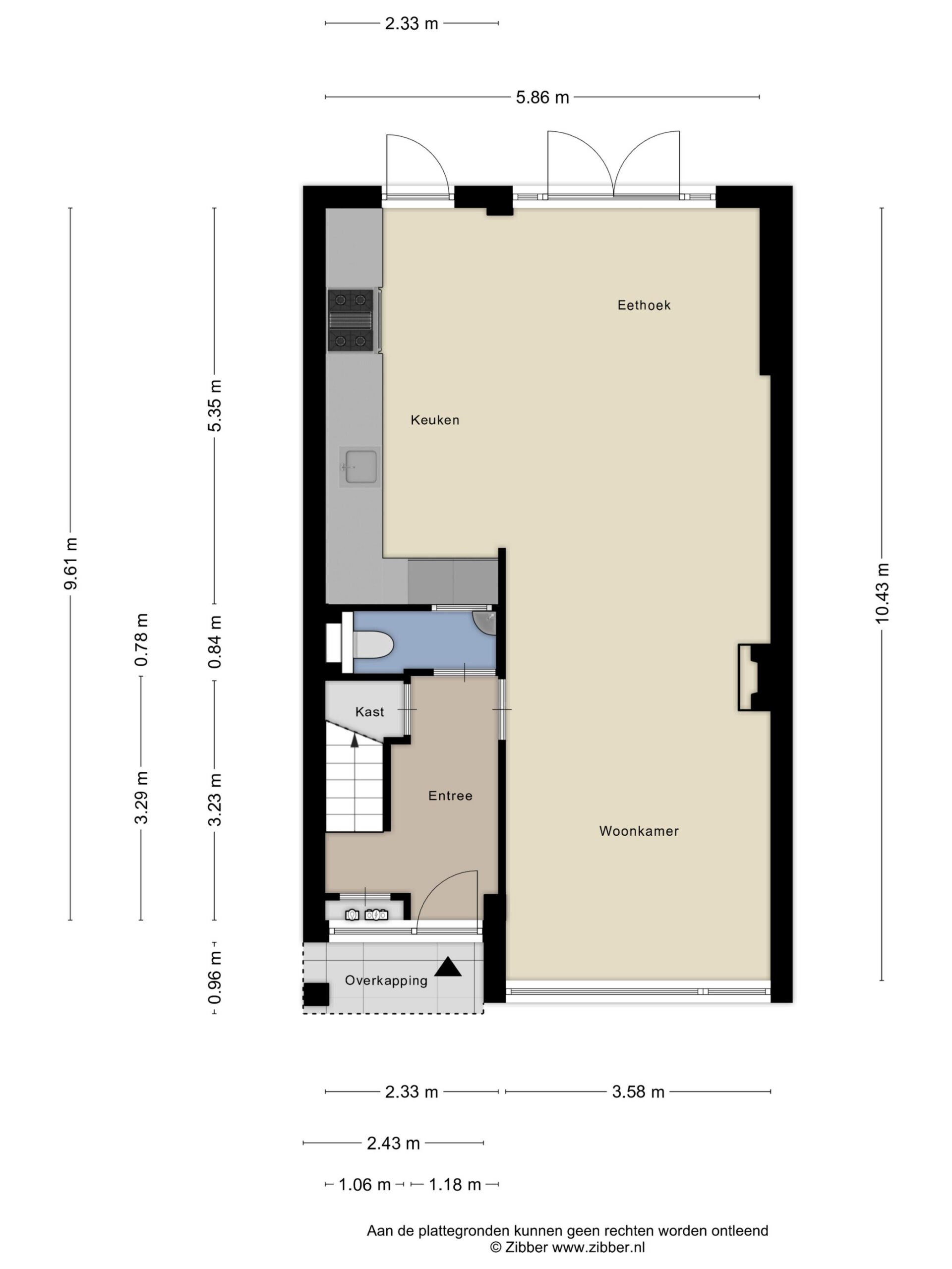
– de woonkamer is aan de voorzijde gelegen en ingericht met een comfortabele zithoek en beschikt over een sfeervolle gashaard;
– aan de achterzijde is de woning over de volledige breedte uitgebouwd, wat heeft gezorgd voor een heerlijke en ruime woonkeuken;
– brede openslaande deuren én een aparte loopdeur zorgen voor een fijne verbinding met het terras en de tuin.
– de complete L-vormige keuken is uitgevoerd met een granieten werkblad en voorzien van een breed 6-pits gasfornuis met oven, moderne afzuigkap, koelkast en een vaatwasser;
– op de eerste verdieping bevinden zich drie ruime slaapkamers die allemaal netjes zijn afgewerkt. De masterbedroom is voorzien van comfortabele airconditioning;
– de moderne badkamer is ingericht met een ligbad met douchegelegenheid en een wastafel met fraai meubel;
– de tweede verdieping is bereikbaar via een vaste trap. Hier vind je een riante vierde slaapkamer, een aparte werkkamer en een praktische wasruimte;
– de wasruimte beschikt over een werkblad met daaronder ruimte voor de wasmachine en droger. Tevens bevindt zich hier de opstelling van de cv-ketel (Intergas, 2022);
– de zonnige achtertuin is fraai aangelegd en gunstig gelegen op het zuiden. Daarnaast is er een fijne overkapping, een achterom én een stenen berging aanwezig;
– er zijn 13 zonnepanelen aanwezig (2019);
– de tweede verdieping is voorzien van rolluiken;
– parkeren kan eenvoudig voor de deur;
– de oplevering kan in overleg plaatsvinden.

Benieuwd of dit jouw Waare (t)Huis wordt?
We laten het je graag zien tijdens een bezichtiging!

Toon meer Lees minder
Digitale rondleiding
Kenmerken
  • Status Beschikbaar
  • Vraagprijs € 495.000,- k.k.
  • Aanvaarding In overleg
  • Soort woonhuis Tussenwoning
  • Soort bouw Bestaande bouw
  • Bouwjaar 1968
  • Soort dak Samengesteld dak
  • Onderhoud binnen Goed
  • Onderhoud buiten Goed
  • Gebruiksoppervlakte wonen ca. 141 m2
  • Oppervlakte gebouwgebonden ca. 2 m2
  • Externe bergruimte ca. 6 m2
  • Inhoud ca. 500 m3
  • Perceeloppervlakte ca. 164 m2
  • Aantal badkamers 1 badkamer
  • Badkamervoorzieningen Ligbad, wastafel, wastafelmeubel
  • Aantal woonlagen 3 woonlagen
  • Voorzieningen Rolluiken, tv kabel, buitenzonwering, airconditioning, rookkanaal, glasvezel kabel, zonnepanelen, natuurlijke ventilatie
  • Energielabel A
  • Isolatie Volledig geisoleerd
  • Verwarming Cv ketel, gashaard
  • Warm water Cv ketel
  • C.v.-ketel type Gas
  • C.v.-ketel bouwjaar 2022
  • Eigendom Eigendom
  • Ligging Aan rustige weg, in woonwijk
  • Oppervlakte hoofdtuin ca. 54 m2
  • Ligging hoofdtuin Zuidoost
  • Achterom Ja
  • Kwaliteit tuin Verzorgd
  • Schuur / berging Vrijstaand steen
  • Aantal schuren / bergingen Ja
  • Parkeerfaciliteiten Openbaar parkeren
  • Garage Geen garage
Het Waare Huis

Met aandacht maken we alles mooier

Kies voor onze unieke aanpak!

Fles bubbels bij verkocht huis
Dit veld is bedoeld voor validatiedoeleinden en moet niet worden gewijzigd.
Cookie melding

Het Waare Huis maakt gebruik van eigen cookies en die van derden om zo een betere service te kunnen verlenen en statistische gegevens van bezoekers bij te houden.

Accepteren