Beschikbaar

Emeraldpad 50

5247 kg, Rosmalen
  • 205
  • 358
  • 4 slaapkamers
  • A
€ 925.000,- k.k.
Martijn Vosmar Makelaar
Omschrijving

Jouw Waare (t)Huis aan Emeraldpad 50 in Rosmalen! Ben je op zoek naar een royale en modern afgewerkte twee-onder-een-kapwoning met volop leefruimte, twee badkamers, een multifunctionele kamer op de begane grond én een rustige ligging aan een brede wadi? Dan is dit instapklare familiehuis aan het Emeraldpad precies wat je zoekt. Met vier slaapkamers, een luxe woonkeuken, een ruime master suite op de tweede verdieping en een privacyrijke tuin met…

Jouw Waare (t)Huis aan Emeraldpad 50 in Rosmalen!

Ben je op zoek naar een royale en modern afgewerkte twee-onder-een-kapwoning met volop leefruimte, twee badkamers, een multifunctionele kamer op de begane grond én een rustige ligging aan een brede wadi? Dan is dit instapklare familiehuis aan het Emeraldpad precies wat je zoekt. Met vier slaapkamers, een luxe woonkeuken, een ruime master suite op de tweede verdieping en een privacyrijke tuin met overkapping biedt deze woning het comfort en de flexibiliteit die perfect passen bij een gezin.

De locatie:
Deze royale tweekapper in de geliefde wijk De Groote Wielen combineert ruimte, comfort en energiezuinig wonen met een fantastische ligging aan een groene wadi. De Groote Wielen is een moderne en kindvriendelijke wijk aan de noordoostzijde van Rosmalen. De wijk kenmerkt zich door haar groene opzet, fijne speelplekken en veilige straten waar kinderen heerlijk buiten kunnen spelen. Aan de voorzijde van de woning bevindt zich een brede wadi met groenstrook. Een prettige buffer, mooie seizoenskleur en een vrij uitzicht.

Op korte afstand vind je verschillende speelgelegenheden, scholen, kinderopvang en wandel- en fietspaden die door de hele wijk lopen. Ook het wijkcentrum van De Groote Wielen ligt nabij. Hier vind je twee supermarkten, een bakker, drogisterijen, horeca, een slijter, een gemakswinkel, diverse sportfaciliteiten en een gezondheidscentrum. Dankzij de gunstige ligging ben je binnen enkele minuten op de A2 en A59 of in Rosmalen en ’s-Hertogenbosch.

Kortom: wonen met alle voorzieningen binnen handbereik, in een rustige en groene setting.

Goed om te weten:
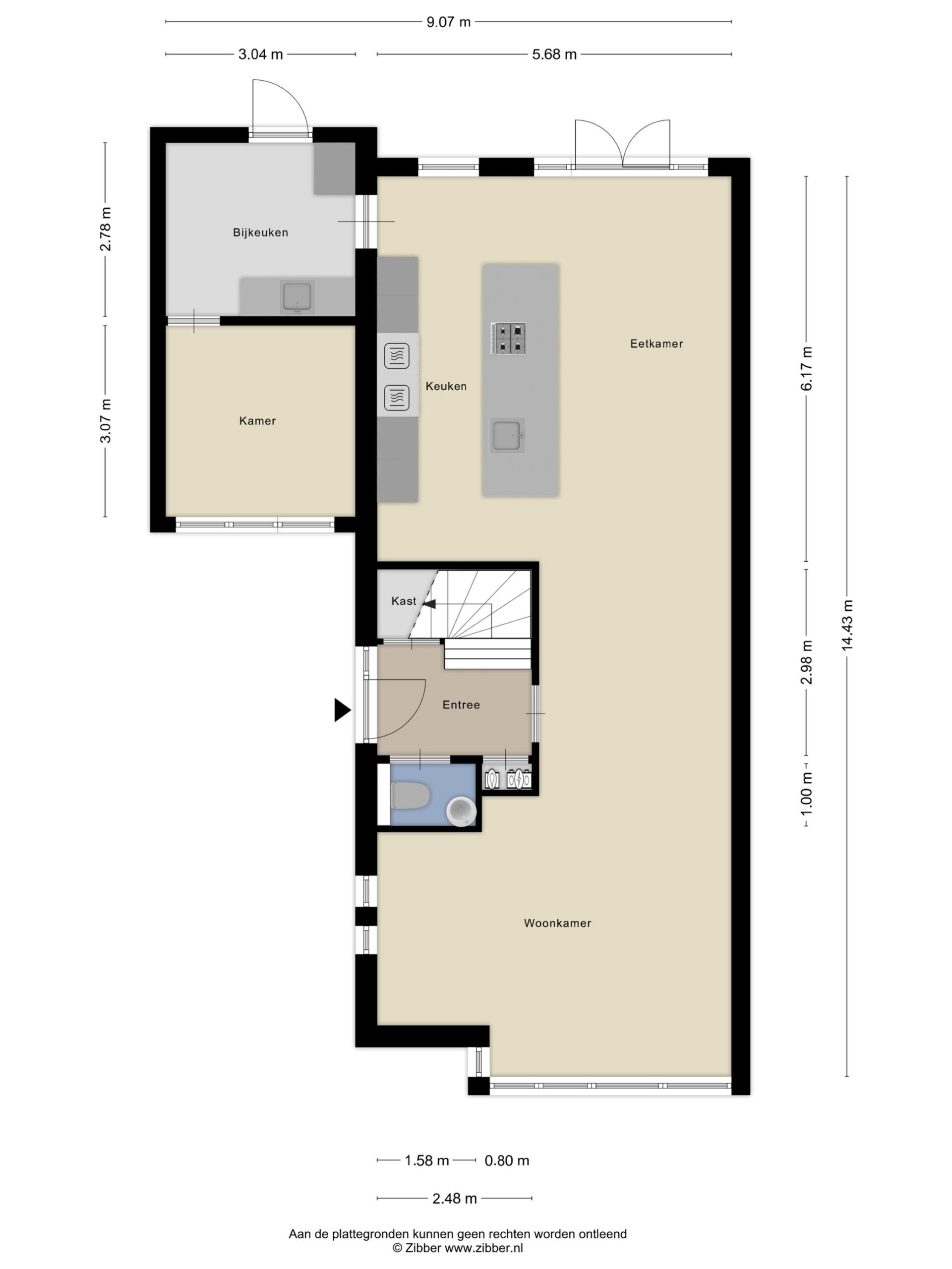
– de ruime woonkamer is strak afgewerkt met gestucte wanden en plafonds, een parketvloer en openslaande deuren naar de achtertuin, waardoor binnen en buiten op een natuurlijke manier in elkaar overlopen;
– de luxe keuken is een echte eyecatcher, met een royaal kookeiland (gasfornuis, vaatwasser, spoelbak), veel bergruimte én een kastenwand met oven, espressomachine, koelkast en vriezer;
– vanuit de keuken bereik je de praktische bijkeuken met tweede keukenblok en deur naar de tuin; ook de multifunctionele ruimte grenst hieraan; ideaal als werkplek, speelkamer, praktijkruimte of logeerunit;
– op de eerste verdieping bevinden zich drie volwaardige slaapkamers, voorzien van laminaatvloeren en gestucte wanden;
– de badkamer op deze verdieping is volledig uitgerust met een ligbad, inloopdouche en wastafel; daarnaast is er een separaat toilet aanwezig;
– de tweede verdieping vormt een royale master suite met eigen badkamer (douche, toilet, wastafel), inbouwspots, wasruimte, stookruimte en extra bergruimte. Een fijne, zelfstandige verdieping met veel comfort;
– de zolderverdieping biedt volop mogelijkheden: met een dakkapel kun je hier eenvoudig meerdere slaapkamers en eventueel een derde badkamer realiseren;
– de achtertuin ligt op het noordoosten, maar door de vrije ligging en slimme indeling geniet je de hele dag van zon; onder de overkapping is altijd een fijne schaduwrijke plek te vinden;
– de tuin biedt veel privacy dankzij de ligging en volwassen beplanting;
– aan de voorzijde geniet je van een groen en vrij uitzicht over de brede wadi;
– parkeren kan op eigen terrein, met ruimte voor meerdere auto’s én een eigen laadpaal;
– de woning is voorzien van airconditioning welke zowel kan koelen als verwarmen;
– er is een hybride warmtepomp aanwezig welke in combinatie met de 16 zonnepanelen zorgt voor lage energielasten en dragen bij aan een duurzame leefstijl;
– oplevering in overleg.

Benieuwd of dit jouw Waare (t)Huis wordt? We laten het je graag zien tijdens een bezichtiging!

Toon meer Lees minder
Digitale rondleiding
Kenmerken
  • Status Beschikbaar
  • Vraagprijs € 925.000,- k.k.
  • Aanvaarding In overleg
  • Soort woonhuis Twee onder een kapwoning
  • Soort bouw Bestaande bouw
  • Bouwjaar 2007
  • Soort dak Zadeldak
  • Onderhoud binnen Goed
  • Onderhoud buiten Goed
  • Gebruiksoppervlakte wonen ca. 205 m2
  • Externe bergruimte ca. 6 m2
  • Overige inpandige ruimte ca. 5 m2
  • Inhoud ca. 744 m3
  • Perceeloppervlakte ca. 358 m2
  • Aantal badkamers 2 badkamers
  • Badkamervoorzieningen Ligbad, wastafel, wastafelmeubel, inloopdouche, toilet, douche, wastafel
  • Aantal woonlagen 3 woonlagen
  • Voorzieningen Mechanische ventilatie, tv kabel, airconditioning, dakraam, glasvezel kabel, zonnepanelen
  • Energielabel A
  • Isolatie Dakisolatie, muurisolatie, vloerisolatie, volledig geisoleerd, hr glas
  • Verwarming Cv ketel, warmtepomp
  • Warm water Cv ketel
  • C.v.-ketel type Gas
  • C.v.-ketel bouwjaar 2022
  • Eigendom Eigendom
  • Ligging Aan rustige weg, in woonwijk, beschutte ligging
  • Oppervlakte hoofdtuin ca. 130 m2
  • Ligging hoofdtuin Noordoost
  • Achterom Ja
  • Kwaliteit tuin Verzorgd
  • Parkeerfaciliteiten Op eigen terrein
  • Garage Geen garage
Het Waare Huis

Met aandacht maken we alles mooier

Kies voor onze unieke aanpak!

Fles bubbels bij verkocht huis
Dit veld is bedoeld voor validatiedoeleinden en moet niet worden gewijzigd.
Cookie melding

Het Waare Huis maakt gebruik van eigen cookies en die van derden om zo een betere service te kunnen verlenen en statistische gegevens van bezoekers bij te houden.

Accepteren