Beschikbaar

Vondelstraat 4

5242 cj, Rosmalen
  • 70
  • 280
  • 3 slaapkamers
  • E
€ 425.000,- k.k.
Martijn Vosmar Makelaar
Omschrijving

KLUSSERS OPGELET! Jouw Waare (t)Huis aan Vondelstraat 4 in Rosmalen! Ben jij op zoek naar een woning die je volledig naar eigen smaak kunt moderniseren? Dan is deze tussenwoning precies wat je zoekt! Met drie slaapkamers, een ruime zolder en een verrassend diepe achtertuin van ca. 30 meter biedt deze woning volop mogelijkheden. Ideaal voor starters of handige klussers die hun eigen droomhuis willen creëren, gelegen op een zeer gewilde…

KLUSSERS OPGELET! Jouw Waare (t)Huis aan Vondelstraat 4 in Rosmalen!
Ben jij op zoek naar een woning die je volledig naar eigen smaak kunt moderniseren? Dan is deze tussenwoning precies wat je zoekt! Met drie slaapkamers, een ruime zolder en een verrassend diepe achtertuin van ca. 30 meter biedt deze woning volop mogelijkheden. Ideaal voor starters of handige klussers die hun eigen droomhuis willen creëren, gelegen op een zeer gewilde locatie in de Molenhoek.

Woonstichting JOOST verkoopt soms een leegstaande eengezinswoning welke uit de huur komt. Huur je nu een sociale huurwoning? Dan kun je met voorrang reageren op deze (eengezins)koopwoningen. Ben je geïnteresseerd in het kopen van een huurwoning? Neem dan contact op met makelaar om meer te weten te komen.

Hoe werkt het?
1. De makelaar biedt onze eengezinswoning aan voor verkoop op Funda en op hun eigen website;
2. Zodra wij een woning te koop aanbieden, kan iedereen reageren, zowel huurders als niet-huurders;
3. Echter, gedurende de eerste 4 weken dat de woning te koop staat, worden alleen huurders van een sociale huurwoning (van Woonstichting JOOST, Area, Brabant Wonen, Charlotte van Beuningen, Mooiland, Woonmeij, Woonveste en Zayaz) uitgenodigd voor een bezichtiging;
4. Na een bezoek aan de woning kunnen deze huurders een bod uitbrengen. Elke huurder mag eenmaal zijn hoogste bod doen. Als het hoogste bod van een huurder acceptabel is (minimaal de taxatiewaarde), wordt de woning aan deze huurder verkocht;
5. Is er geen acceptabel bod? Dan worden ook niet-huurders uitgenodigd voor een bezichtiging. Zij kunnen dan (eenmalig) een bod uitbrengen.

Aan deze voorrangsregeling is wel een aantal voorwaarden verbonden
1. Je woont in een sociale huurwoning van woningcorporatie (van woonstichting JOOST, Area, Brabant Wonen, Charlotte van Beuningen, Mooiland, Woonmeij, Woonveste en Zayaz), staat genoemd op het huurcontract, zegt de huurovereenkomst op en laat deze leeg achter;
2. Je hebt geen tijdelijk huurcontract;
3. Bij de eerste bezichtigingsronde nodigen wij alleen huurders uit. De woning wordt gegund aan degene met het beste acceptabele bod;
4. Je bent zelf aanwezig tijdens de bezichtiging;
5. Je kunt niet meedoen aan de regeling als er overlastklachten of vermoedens van onderhuur voor jouw huidige woning zijn;
6. Bij de ondertekening van de voorlopige koopovereenkomst teken je een verklaring dat je afstand doet van jouw huurcontact;
7. Je gaat zelf in de koopwoning wonen;
8. Je mag de koopwoning de eerste 5 jaar niet verkopen aan een derde partij;
9. Woonstichting JOOST behoudt het recht van gunning;

Locatie:
De Vondelstraat ligt in één van de meest gewilde gedeeltes van Rosmalen, in de ruim opgezette wijk “De Molenhoek”. Voor de dagelijkse boodschappen is het winkelcentrum Molenhoekpassage bijzonder goed voorzien. Je kunt hier te voet naar toe. Ook scholen, sportvoorzieningen, recreatievoorzieningen en de natuur zijn op korte afstand bereikbaar, denk bv aan een mooie buitenspeeltuin (’t Kwekkeltje), een binnen- en buitenzwembad, de Zandverstuiving en het Kanaalpark. Voor een dagje ’s-Hertogenbosch kun je met de trein, stadsbus of fiets eenvoudig het bourgondische stadscentrum bereiken. Voor de forenzen is Rosmalen een perfecte uitvalsbasis vanwege de zeer gunstige ligging ten aanzien van de diverse autosnelwegen richting de grote steden.

Goed om te weten
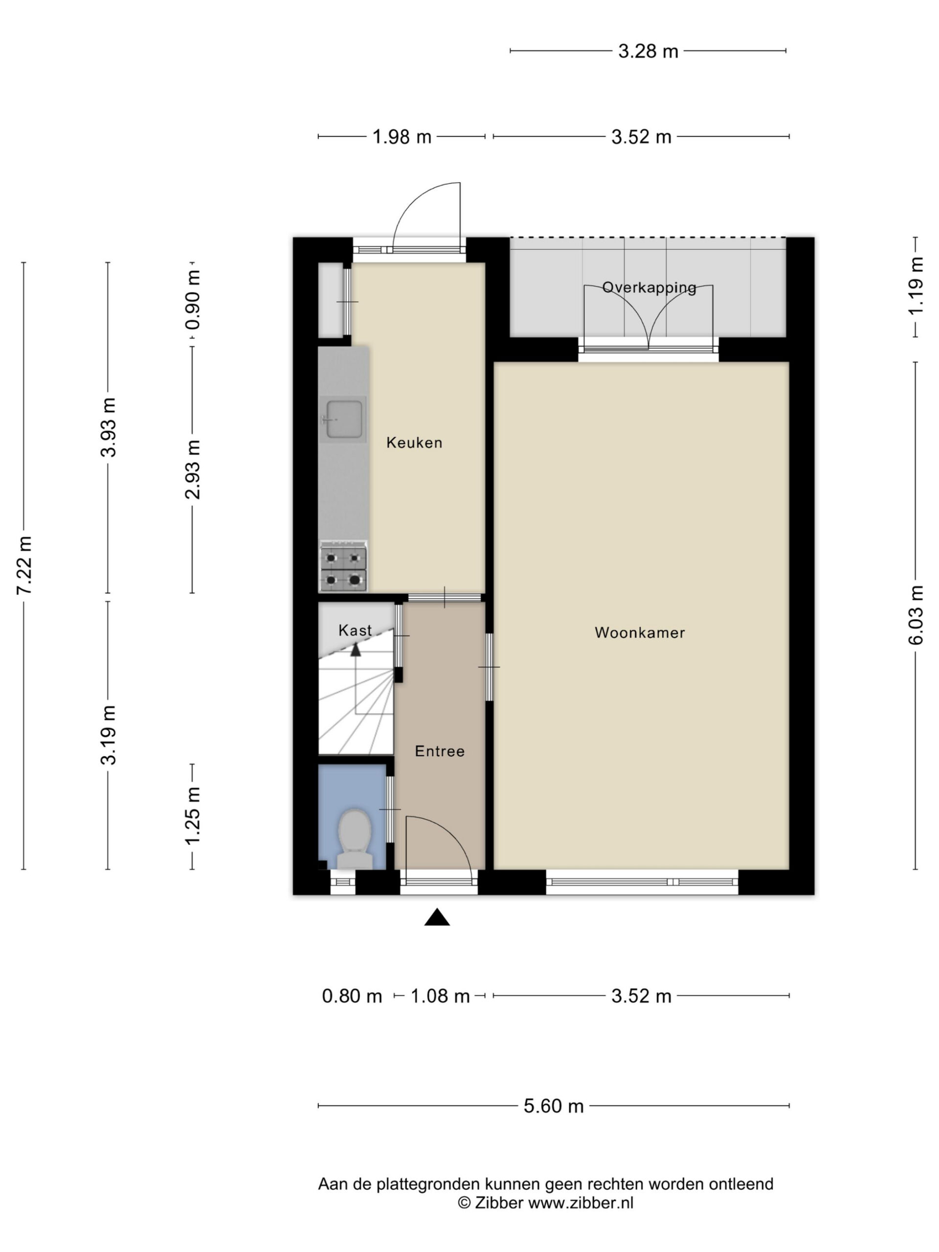
– de woning is gebouwd in 1960 en biedt een goede basis voor modernisering naar eigen wens;
– de doorzon woonkamer beschikt over prettig lichtinval en een houten vloer en geeft toegang tot de achtertuin;
– de gesloten keuken is eenvoudig uitgevoerd en voorzien van een gaskookplaat, afzuigkap en spoelbak;
– de badkamer is gedateerd en ingericht met een douche en wastafel, wat ruimte biedt voor een eigentijdse renovatie;
– op de eerste verdieping bevinden zich drie slaapkamers, allen voorzien van laminaatvloeren en natuurlijke lichtinval;
– de zolder is bereikbaar via een vlizotrap en biedt praktische bergruimte;
– de achtertuin is ca. 30 meter diep en biedt volop mogelijkheden voor tuinliefhebbers, met een vrijstaande stenen berging en achterom;
– parkeren is mogelijk in de directe omgeving op openbaar terrein;
– de woning heeft energielabel E;

oplevering in overleg.

Toon meer Lees minder
Kenmerken
  • Status Beschikbaar
  • Vraagprijs € 425.000,- k.k.
  • Aanvaarding In overleg
  • Soort woonhuis Tussenwoning
  • Soort bouw Bestaande bouw
  • Bouwjaar 1960
  • Soort dak Zadeldak
  • Onderhoud binnen Redelijk tot goed
  • Onderhoud buiten Redelijk tot goed
  • Gebruiksoppervlakte wonen ca. 70 m2
  • Oppervlakte gebouwgebonden ca. 10 m2
  • Externe bergruimte ca. 9 m2
  • Overige inpandige ruimte ca. 11 m2
  • Inhoud ca. 285 m3
  • Perceeloppervlakte ca. 280 m2
  • Aantal badkamers 1 badkamer
  • Badkamervoorzieningen Douche
  • Aantal woonlagen 3 woonlagen
  • Voorzieningen Tv kabel, dakraam, natuurlijke ventilatie
  • Energielabel E
  • Isolatie Dakisolatie, muurisolatie, dubbel glas
  • Verwarming Cv ketel
  • Warm water Cv ketel
  • C.v.-ketel type Gas
  • C.v.-ketel bouwjaar 2024
  • Eigendom Eigendom
  • Ligging Aan rustige weg, in woonwijk
  • Oppervlakte hoofdtuin ca. 193 m2
  • Ligging hoofdtuin Noord
  • Achterom Ja
  • Kwaliteit tuin Normaal
  • Schuur / berging Vrijstaand steen
  • Aantal schuren / bergingen Ja
  • Parkeerfaciliteiten Openbaar parkeren
  • Garage Geen garage
Het Waare Huis

Met aandacht maken we alles mooier

Kies voor onze unieke aanpak!

Fles bubbels bij verkocht huis
Dit veld is bedoeld voor validatiedoeleinden en moet niet worden gewijzigd.
Cookie melding

Het Waare Huis maakt gebruik van eigen cookies en die van derden om zo een betere service te kunnen verlenen en statistische gegevens van bezoekers bij te houden.

Accepteren