Beschikbaar

Oude Vlijmenseweg 25

5223 gk, 's-hertogenbosch
  • 273
  • 588
  • 3 slaapkamers
  • C
€ 819.000,- k.k.
Jasper van den Broek Makelaar
Omschrijving

Jouw Waare (t)Huis aan Oude Vlijmenseweg 255 in ’s-Hertogenbosch! Een woning met mogelijkheden zoals je ze zelden tegenkomt! Deze karakteristieke hoekwoning uit 1937 is door de jaren heen grondig gemoderniseerd en biedt een unieke combinatie van ruim en comfortabel wonen met daarnaast een volledig zelfstandig bijgebouw met eigen huisnummer. Ideaal voor gezinnen die op zoek zijn naar extra ruimte, maar ook perfect voor mantelzorg, inwoning of werken aan huis. Met…

Jouw Waare (t)Huis aan Oude Vlijmenseweg 255 in ’s-Hertogenbosch!
Een woning met mogelijkheden zoals je ze zelden tegenkomt! Deze karakteristieke hoekwoning uit 1937 is door de jaren heen grondig gemoderniseerd en biedt een unieke combinatie van ruim en comfortabel wonen met daarnaast een volledig zelfstandig bijgebouw met eigen huisnummer. Ideaal voor gezinnen die op zoek zijn naar extra ruimte, maar ook perfect voor mantelzorg, inwoning of werken aan huis. Met een royale woonoppervlakte, moderne afwerking, 12 zonnepanelen, airconditioning, een ruime garage en twee zonnige tuinen op het zuidoosten is dit een plek waar flexibiliteit en wooncomfort centraal staan.

Locatie
De woning is gelegen aan de Oude Vlijmenseweg, op korte afstand van het centrum van ’s-Hertogenbosch. In de directe omgeving vind je diverse voorzieningen zoals supermarkten, scholen, sportfaciliteiten en horecagelegenheden. Daarnaast zijn de uitvalswegen richting de A59 en A2 eenvoudig bereikbaar. Een centrale en praktische ligging, ideaal voor gezinnen en voor wie wonen en werken wil combineren.

Goed om te weten, hoofdwoning:
– de woning is gebouwd in 1937 en combineert karakteristieke elementen met een moderne en verzorgde afwerking, mede dankzij de renovatie in 2021/2022;
– de begane grond is voorzien van een tegelvloer met vloerverwarming in combinatie met gestucte wanden en plafonds;
– de ruime woonkamer beschikt over veel lichtinval dankzij de grote raampartijen en biedt volop ruimte voor een comfortabele zithoek en een royale eethoek;
– via de openslaande deuren is er direct toegang tot de tuin, wat zorgt voor een prettige verbinding tussen binnen en buiten;
– de moderne open keuken is uitgevoerd in een eigentijdse stijl en voorzien van diverse inbouwapparatuur zoals in inductiekookplaat met afzuiging, koelkast, combi-magnetron en een vaatwasmachine;
– via een portaal is er toegang tot de moderne toiletruimte, een kast met de aansluitingen voor de wasapparatuur en een werkkamer;
– de woning beschikt daarnaast over een multifunctionele ruimte op de begane grond, geschikt als praktijkruimte, kantoor of speelkamer;
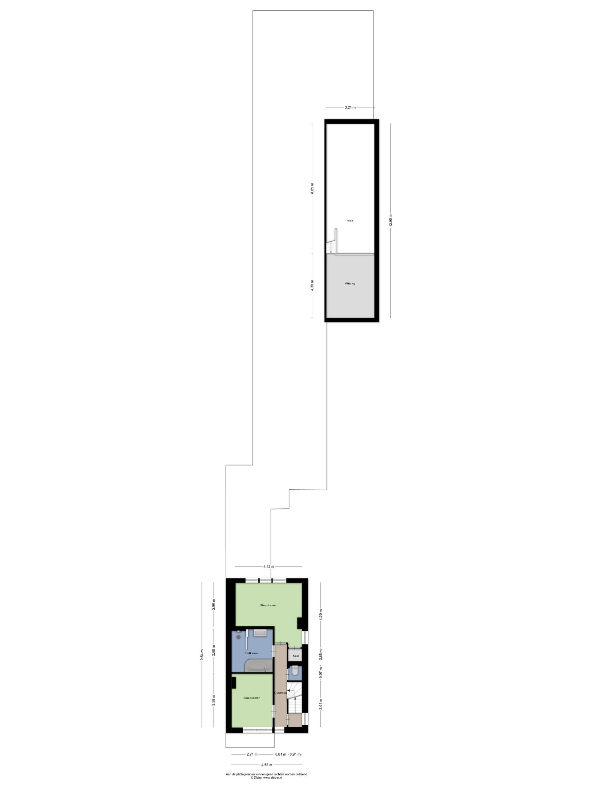
– op de eerste verdieping bevinden zich de overloop, twee slaapkamers, een moderne badkamer (2022) en een separate toiletruimte;
– de geheel betegelde badkamer is voorzien van comfortabele vloerverwarming, een ligbad, een inloopdouche met regendouche en een badkamermeubel met wastafel;
– de tweede verdieping beschikt over een ruime derde slaapkamer die is voorzien van een dakkapel;
– de elektrische installatie is vernieuwd in 2021, wat bijdraagt aan een moderne en veilige woonomgeving;
– de tuin is gelegen op het zuidoosten, fraai aangelegd en voorzien van meerdere zitmogelijkheden en een fijne mate van privacy;
– parkeren kan op eigen terrein en in de ruime garage met aangrenzende berging;
– de woning is voorzien van 12 zonnepanelen (2023) en airconditioning, wat zorgt voor extra comfort en lagere energielasten;
– oplevering in overleg.

Bijzonderheden, bijgebouw:
– het inpandig bereikbare bijgebouw is volledig zelfstandig en beschikt over een eigen huisnummer, wat het object bijzonder geschikt maakt voor dubbele bewoning of zorg aan huis;
– ideaal voor mantelzorg, inwoning, gastenverblijf of werken aan huis, met volledige privacy voor zowel hoofdwoning als bijgebouw;
– voorzien van een eigen keuken en sanitaire voorzieningen, waardoor het bijgebouw volledig zelfstandig te gebruiken is;
– de badkamer op de begane grond is luxe afgewerkt en beschikt over een inloopdouche én sauna, wat zorgt voor extra comfort en ontspanning;
– via de schuifpui is er direct toegang tot de tuin, wat zorgt voor een fijne en lichte leefruimte;
– beschikt over een eigen tuin, eveneens gelegen op het zuidoosten, waardoor ook hier optimaal van de zon kan worden genoten;
– het bijgebouw is in dezelfde stijl gemoderniseerd als de hoofdwoning en verkeert in een nette en verzorgde staat;
– biedt volop privacy en zelfstandigheid ten opzichte van de hoofdwoning, terwijl het toch onderdeel blijft van één geheel.
– oplevering in overleg.

Benieuwd of dit jouw Waare (T)huis wordt?
We laten het je graag zien tijdens een bezichtiging!

Toon meer Lees minder
Digitale rondleiding
Kenmerken
  • Status Beschikbaar
  • Vraagprijs € 819.000,- k.k.
  • Aanvaarding In overleg
  • Soort woonhuis Hoekwoning
  • Soort bouw Bestaande bouw
  • Bouwjaar 1937
  • Soort dak Zadeldak
  • Onderhoud binnen Goed
  • Onderhoud buiten Goed
  • Gebruiksoppervlakte wonen ca. 273 m2
  • Oppervlakte gebouwgebonden ca. 2 m2
  • Overige inpandige ruimte ca. 69 m2
  • Inhoud ca. 1212 m3
  • Perceeloppervlakte ca. 588 m2
  • Aantal badkamers 2 badkamers
  • Badkamervoorzieningen Ligbad, wastafel, wastafelmeubel, inloopdouche, vloerverwarming, toilet, wastafel, wastafelmeubel, inloopdouche, sauna
  • Aantal woonlagen 3 woonlagen
  • Voorzieningen Mechanische ventilatie, tv kabel, buitenzonwering, airconditioning, rookkanaal, schuifpui, glasvezel kabel, zonnepanelen
  • Energielabel C
  • Isolatie Dakisolatie, muurisolatie, vloerisolatie, gedeeltelijk dubbel glas, hr glas
  • Verwarming Cv ketel, vloerverwarming gedeeltelijk, houtkachel
  • Warm water Cv ketel
  • C.v.-ketel type Gas
  • C.v.-ketel bouwjaar 2021
  • Eigendom Eigendom
  • Ligging In woonwijk
  • Oppervlakte hoofdtuin ca. 109 m2
  • Ligging hoofdtuin Zuidoost
  • Achterom Ja
  • Kwaliteit tuin Verzorgd
  • Schuur / berging Aangebouwd steen
  • Aantal schuren / bergingen Ja
  • Parkeerfaciliteiten Parkeervergunningen, op eigen terrein
  • Garage Aangebouwd steen
Het Waare Huis

Met aandacht maken we alles mooier

Kies voor onze unieke aanpak!

Fles bubbels bij verkocht huis
Dit veld is bedoeld voor validatiedoeleinden en moet niet worden gewijzigd.
Cookie melding

Het Waare Huis maakt gebruik van eigen cookies en die van derden om zo een betere service te kunnen verlenen en statistische gegevens van bezoekers bij te houden.

Accepteren