Beschikbaar

Jacob Roggeveenstraat 27

5223 vm, 's-hertogenbosch
  • 97
  • 125
  • 2 slaapkamers
  • B
€ 409.000,- k.k.
Martijn Vosmar Makelaar
Omschrijving

Jouw Waare (t)Huis aan Jacob Roggeveenstraat 27 Een heerlijk instapklaar huis aan een rustig hofje in de wijk De Schutskamp in ’s-Hertogenbosch. Deze goed onderhouden tussenwoning combineert comfort, duurzaamheid en een verrassende hoeveelheid ruimte met een buurtgevoel dat je zelden vindt. Je woont hier aan een hofje met alleen bestemmingsverkeer; heerlijk rustig en veilig. En de sfeer? Die is hartverwarmend. Er is altijd sociale betrokkenheid en bereidheid om spullen te…

Jouw Waare (t)Huis aan Jacob Roggeveenstraat 27

Een heerlijk instapklaar huis aan een rustig hofje in de wijk De Schutskamp in ’s-Hertogenbosch. Deze goed onderhouden tussenwoning combineert comfort, duurzaamheid en een verrassende hoeveelheid ruimte met een buurtgevoel dat je zelden vindt.

Je woont hier aan een hofje met alleen bestemmingsverkeer; heerlijk rustig en veilig. En de sfeer? Die is hartverwarmend. Er is altijd sociale betrokkenheid en bereidheid om spullen te delen of elkaar te helpen. Er is bovendien een eigen oprit voor de deur én ruim voldoende parkeergelegenheid naast het hofje.

De ligging is perfect: binnen 2 minuten fiets je naar winkelcentrum De Helftheuvel, binnen 5 minuten sta je op station ’s-Hertogenbosch en in 7 minuten fiets je naar het bruisende centrum. Liever wandelen? Dat kan ook, in slechts 25 minuten. De natuur is nooit ver weg met De Moerputten en het Engelermeer vlakbij – ideaal voor een ontspannen wandeling of sportieve activiteit.

Pluspunten van deze woning:
– Instapklaar en goed onderhouden, je kunt hier direct comfortabel wonen;
– Grote, lichte woonkamer met massieve eikenhouten vloer voor warmte en uitstraling;
– Dubbel openslaande deuren met hordeur, ideaal voor zomerse dagen;
– Twee slaapkamers met mogelijkheid tot een derde, flexibel in te delen voor de toekomst;
– 6 zonnepanelen (2021) zorgen voor lagere energielasten;
– Nieuwe cv-ketel Intergas CW5 (2023), energiezuinig en betrouwbaar;
– Slimme radiatoren, eenvoudig per ruimte te regelen via een app;
– Keuken met vernieuwde vaatwasser (2023) en koelkast (2024);
– Rolluiken op de slaapkamer voor verduistering en extra isolatie;
– Ruime, inpandige berging met elektra
– Tuin op het zuid-oosten, met een achterom en volop privacy.
– Eigen oprit en voldoende parkeergelegenheid bij het hofje;
– Geluiddichte woning, waardoor je binnen volop rust en privacy ervaart;

Goed om te weten dat…
…de woning niet alleen duurzaam en praktisch is, maar ook voelt als een warme thuisbasis. De grote woonkamer geeft een heerlijk gevoel van ruimte en biedt volop plek voor bezoek, spelende kinderen of gewoon een ontspannen avond met z’n tweeën.

Voor expats:
De woning is zeer gunstig gelegen voor wie werkt in de regio. Je bent via de nabijgelegen uitvalswegen binnen 30 minuten in Eindhoven en Veldhoven, binnen 40 minuten in Utrecht en binnen een uur in Amsterdam. Ideaal voor wie centraal wil wonen met een rustige thuisbasis.

Wil jij wonen op een plek waar buren nog voor elkaar klaarstaan en waar je zonder klussen meteen in kunt trekken? Dan is dit jouw Waare (t)Huis.

Toon meer Lees minder
Digitale rondleiding
Kenmerken
  • Status Beschikbaar
  • Vraagprijs € 409.000,- k.k.
  • Aanvaarding In overleg
  • Soort woonhuis Tussenwoning
  • Soort bouw Bestaande bouw
  • Bouwjaar 2002
  • Soort dak Plat dak
  • Onderhoud binnen Goed
  • Onderhoud buiten Goed
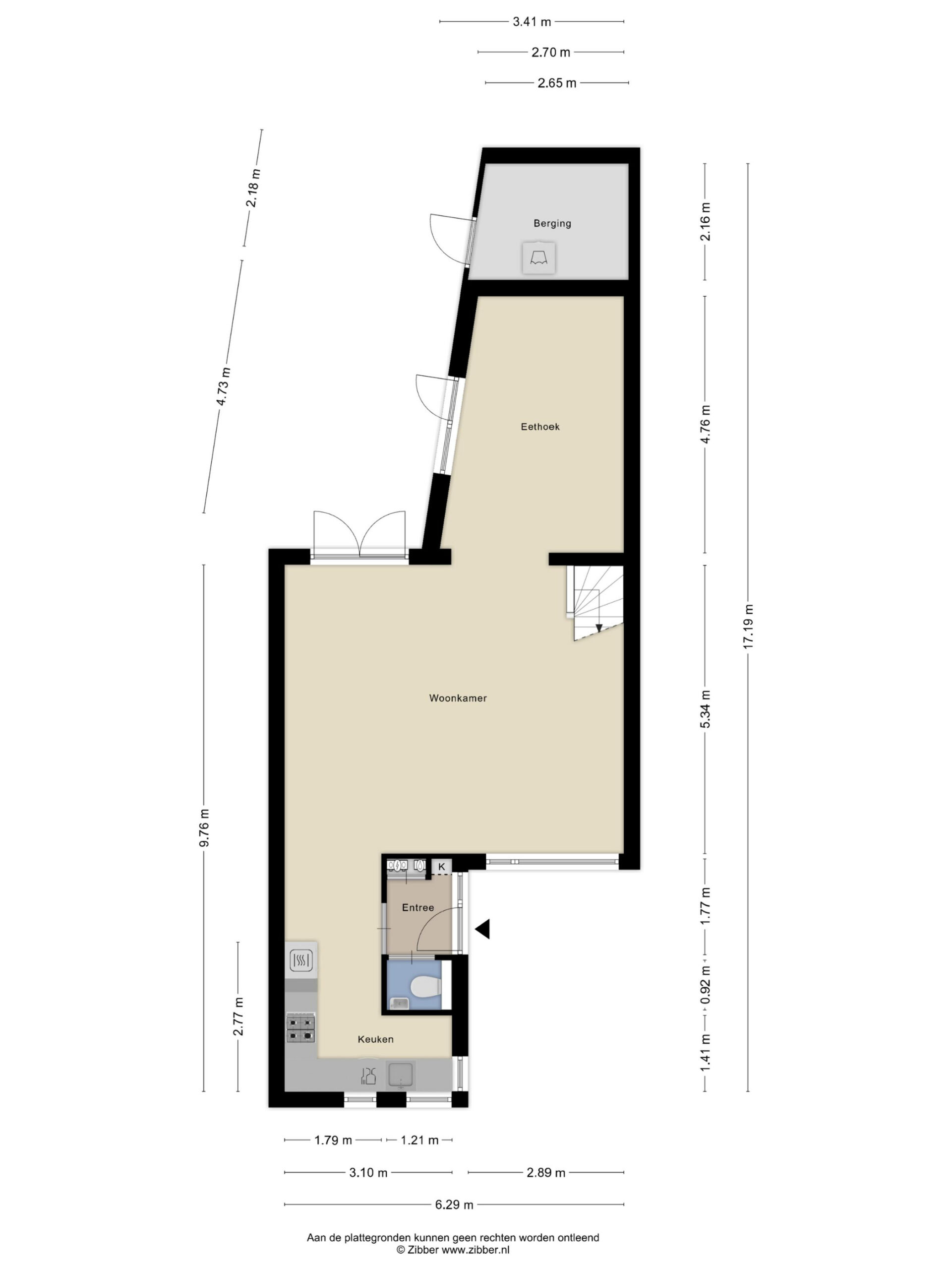
  • Gebruiksoppervlakte wonen ca. 97 m2
  • Overige inpandige ruimte ca. 6 m2
  • Inhoud ca. 365 m3
  • Perceeloppervlakte ca. 125 m2
  • Aantal badkamers 1 badkamer
  • Badkamervoorzieningen Ligbad, toilet, wastafel
  • Aantal woonlagen 2 woonlagen
  • Voorzieningen Mechanische ventilatie, rolluiken, tv kabel, zonnepanelen
  • Energielabel B
  • Isolatie Dakisolatie, muurisolatie, vloerisolatie, volledig geisoleerd, hr glas
  • Verwarming Cv ketel
  • Warm water Cv ketel
  • C.v.-ketel type Gas
  • C.v.-ketel bouwjaar 2023
  • Eigendom Eigendom
  • Ligging In woonwijk, beschutte ligging
  • Oppervlakte hoofdtuin ca. 18 m2
  • Ligging hoofdtuin Zuidoost
  • Achterom Ja
  • Kwaliteit tuin Verzorgd
  • Schuur / berging Aangebouwd steen
  • Aantal schuren / bergingen Ja
  • Parkeerfaciliteiten Op eigen terrein
  • Garage Geen garage
Het Waare Huis

Met aandacht maken we alles mooier

Kies voor onze unieke aanpak!

Fles bubbels bij verkocht huis
Dit veld is bedoeld voor validatiedoeleinden en moet niet worden gewijzigd.
Cookie melding

Het Waare Huis maakt gebruik van eigen cookies en die van derden om zo een betere service te kunnen verlenen en statistische gegevens van bezoekers bij te houden.

Accepteren