Beschikbaar

Espenhof 30

5248 br, Rosmalen
  • 189
  • 333
  • 4 slaapkamers
  • A
€ 975.000,- k.k.
Jasper van den Broek Makelaar
Omschrijving

Jouw Waare (t)Huis aan Espenhof 30 in Rosmalen (Maliskamp) Deze vrijstaande woning uit 2019 combineert ruimte, comfort en een luxe afwerking met een groene ligging in een rustige woonomgeving. Met een woonoppervlakte van ruim 189 m², energielabel A, een fraaie tuin met overkapping en een eigen oprit voor drie auto’s is dit een ideaal (t)huis voor gezinnen die op zoek zijn naar kwaliteit en wooncomfort. Heerlijk wonen in de nieuwbouwwijk…

Jouw Waare (t)Huis aan Espenhof 30 in Rosmalen (Maliskamp)

Deze vrijstaande woning uit 2019 combineert ruimte, comfort en een luxe afwerking met een groene ligging in een rustige woonomgeving. Met een woonoppervlakte van ruim 189 m², energielabel A, een fraaie tuin met overkapping en een eigen oprit voor drie auto’s is dit een ideaal (t)huis voor gezinnen die op zoek zijn naar kwaliteit en wooncomfort.

Heerlijk wonen in de nieuwbouwwijk Eikenburg in de ruim opgezette, lommerrijke omgeving van villapark Maliskamp! Gesitueerd in een kindvriendelijke straat met scholen, winkels, sportvelden (hockey, tennis, voetbal en golf) en prachtige, bosrijke natuur op steenworp afstand. Het centrum van Rosmalen met eigen NS station is op korte afstand te bereiken. Het historische centrum van ’s-Hertogenbosch bevindt zich op slechts een paar autominuten, alsmede de belangrijke verbindingswegen richting Utrecht, Eindhoven en Nijmegen.

Goed om te weten
– de entree biedt toegang tot een garderobenis, de meterkast, de moderne toiletruimte met fonteintje, een trapkast en via een stalen deur tot de woonkamer;
– de royale L-vormige woonkamer is opvallend licht dankzij de grote raampartijen en afgewerkt met een fraaie visgraat pvc-vloer met comfortabele vloerverwarming, een strakke wandafwerking en een stucwerk plafond;
– een strakke schouw met elektrische sfeerhaard maakt het plaatje compleet;
– grenzend aan de woonkamer bevindt zich een speel-/werkkamer, ideaal als kinderhoek, kantoor of hobbyruimte;
– via de speelkamer is de inpandige berging bereikbaar die tevens toegankelijk is via de oprit;
– de open keuken is voorzien van een luxe keukeninrichting met kookeiland voorzien van een composieten werkblad en een ingebouwde inductie kookplaat met afzuiging (Bora), de vaatwasser en een Quooker;
– in de kastenwand bevinden zich een oven, een combi-magnetron en een koelkast en vriezer;
– de eethoek is sfeervol ingericht met een vaste, op maat gemaakte hoekbank en een houten lamellenwand;
– indien gewenst is de op maat gemaakte eettafel ter overname;
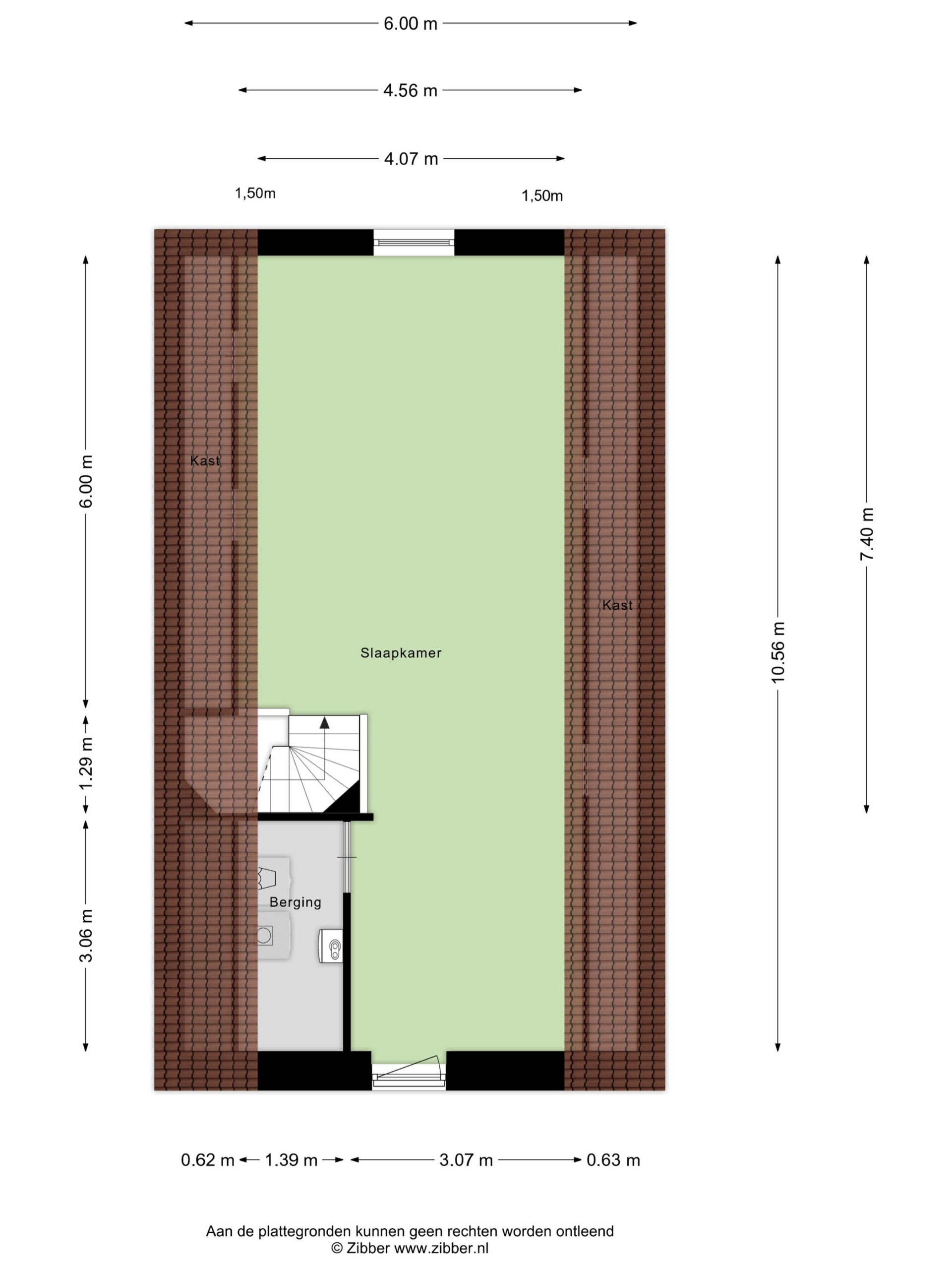
– de overloop op de eerste verdieping geeft toegang tot drie ruime slaapkamers, waarvan de hoofdslaapkamer de beschikking heeft over een walk-in closet;
– de slaapkamers zijn allen voorzien van een visgraat laminaatvloer en een strakke wandafwerking;
– de luxe badkamer (2019) is volledig betegeld en ingericht met een vrijstaand ligbad, een inloopdouche, een badkamermeubel met dubbele wastafel, een tweede toilet en een designradiator;
– via een vaste trap is de tweede verdieping van circa 40 m2 bereikbaar;
– op deze verdieping bevindt zich momenteel een royale vierde slaapkamer met volop ruimte voor logees, werk of hobby, plus een berging met cv-installatie, WTW-unit en aansluitingen voor wasapparatuur;
– indien gewenst kun je op deze verdieping eenvoudig meerdere slaapkamers realiseren;
– de woning is volledig geïsoleerd en voorzien van HR++ beglazing, vloerverwarming (begane grond en eerste verdieping), balansventilatie en airconditioning op de 1e verdieping;
– er zijn 10 zonnepanelen aanwezig, wat bijdraagt aan lage energielasten;
– de woning is op de begane grond (voorzijde en zijkant) voorzien van elektrisch bedienbare zonnescreens (2025) op zonne-energie, tegen de achtergevel hangt een elektrische luifel (2024);
– de eerste en tweede verdieping (voor- en achterzijde) zijn voorzien van elektrisch bedienbare rolluiken (2025) op zonne-energie;
– de fraai aangelegde achtertuin op het oosten beschikt over een groot terras, gazon, een fraaie overkapping en een berging, perfect voor zomerse dagen en gezellige avonden buiten;
– parkeren kan eenvoudig op eigen terrein, met ruimte voor drie auto’s op de oprit en een aangebouwde berging voor fietsen of extra opslag;
– de woning is luxe afgewerkt, instapklaar en uitstekend onderhouden;
– oplevering in overleg.

Benieuwd of dit jouw Waare (t)Huis wordt?
We laten het je graag zien tijdens een bezichtiging!

Toon meer Lees minder
Digitale rondleiding
Kenmerken
  • Status Beschikbaar
  • Vraagprijs € 975.000,- k.k.
  • Aanvaarding In overleg
  • Soort woonhuis Vrijstaande woning
  • Soort bouw Bestaande bouw
  • Bouwjaar 2019
  • Soort dak Zadeldak
  • Onderhoud binnen Goed tot uitstekend
  • Onderhoud buiten Goed tot uitstekend
  • Gebruiksoppervlakte wonen ca. 189 m2
  • Oppervlakte gebouwgebonden ca. 16 m2
  • Externe bergruimte ca. 4 m2
  • Overige inpandige ruimte ca. 8 m2
  • Inhoud ca. 732 m3
  • Perceeloppervlakte ca. 333 m2
  • Aantal badkamers 1 badkamer
  • Badkamervoorzieningen Ligbad, toilet, dubbele wastafel, wastafelmeubel, inloopdouche, vloerverwarming
  • Aantal woonlagen 3 woonlagen
  • Voorzieningen Mechanische ventilatie, rolluiken, tv kabel, buitenzonwering, airconditioning, glasvezel kabel, zonnepanelen
  • Energielabel A
  • Isolatie Dakisolatie, muurisolatie, vloerisolatie, dubbel glas, volledig geisoleerd
  • Verwarming Cv ketel, vloerverwarming gedeeltelijk
  • Warm water Cv ketel
  • C.v.-ketel type Gas
  • C.v.-ketel bouwjaar 2019
  • Eigendom Eigendom
  • Ligging Aan rustige weg, in woonwijk, in bosrijke omgeving
  • Oppervlakte hoofdtuin ca. 106 m2
  • Ligging hoofdtuin Noordoost
  • Achterom Ja
  • Kwaliteit tuin Fraai aangelegd
  • Schuur / berging Aangebouwd steen
  • Aantal schuren / bergingen Ja
  • Parkeerfaciliteiten Openbaar parkeren, op eigen terrein
  • Garage Geen garage
Het Waare Huis

Met aandacht maken we alles mooier

Kies voor onze unieke aanpak!

Fles bubbels bij verkocht huis
Dit veld is bedoeld voor validatiedoeleinden en moet niet worden gewijzigd.
Cookie melding

Het Waare Huis maakt gebruik van eigen cookies en die van derden om zo een betere service te kunnen verlenen en statistische gegevens van bezoekers bij te houden.

Accepteren